FREESE Holz
Gründach-Carport CLASSIC Holzblende mit Abstellraum (Verkleidung: Klassisches Duoprofil)
Auf Lager
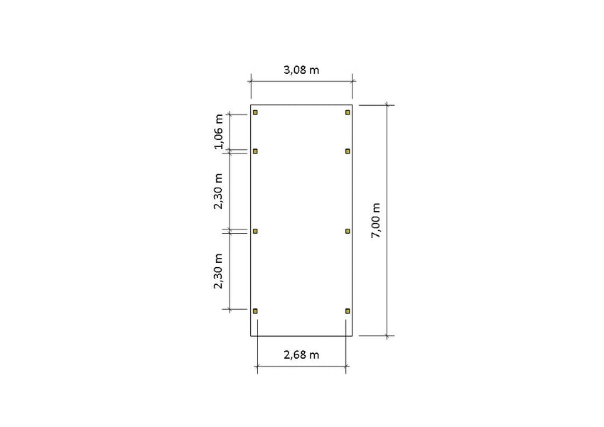
Breite: 3.08 m
Länge: 7.00 m
Holzart der Grundkonstruktion: Kiefer druckimprägniert kdi
Carport mit Gründach aus unserer Serie CLASSIC mit Holzblende
Abstellraum mit klassischem Duoprofil verkleidet, in Kiefer, Lärche oder Fichte passend zum Carport
Das FREESE Holz-Carport aus der traditionellen CLASSIC-Serie besticht durch seine massive, hochwertige Verarbeitung, seine schlichte, elegante Optik und seine zeitlose Eleganz. Die CLASSIC-Serie bieten wir neben einer Blende aus Holz auch mit Schieferblende an.
Verfügbar. Lieferzeit: in der Regel 8-12 Wochen. Dieses Produkt wird für Sie auf Bestellung maßgefertigt. Es gelten die Bedingungen unseres Werkvertrags.



Welche Breite soll ich wählen?
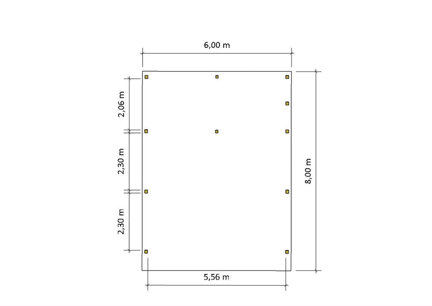
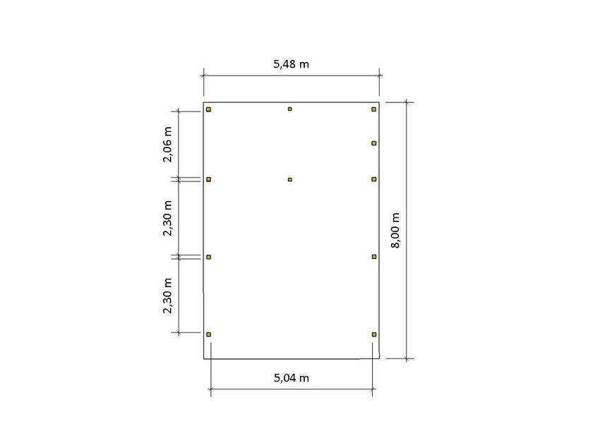
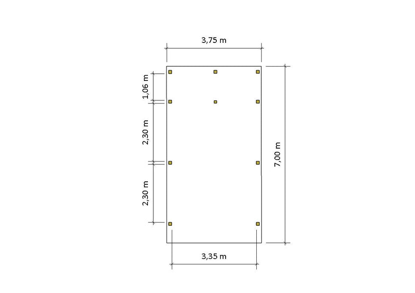
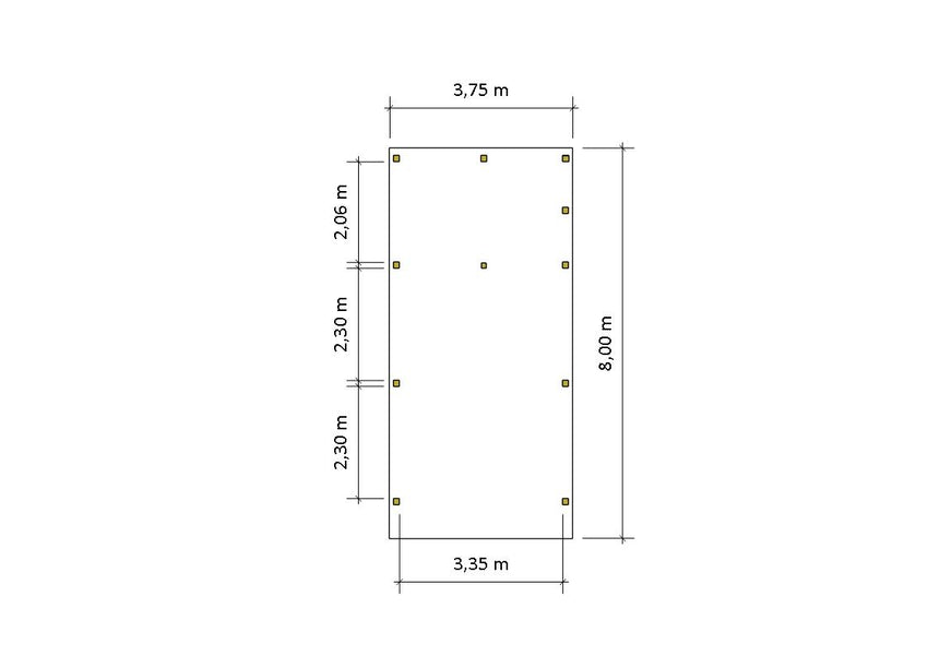
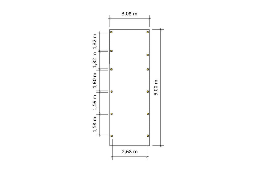
Gründach-Carports bieten wir in vier Breiten an. Der seitliche Dachüberstand beträgt beim Einzelcarport mit Holzblende 8 cm und beim Doppelcarport 10 cm. In der Standardversion ist Ihr Einzelcarport 3,08 m breit. Die Einfahrtsbreite beträgt 2,68 m. In der breiten Version ist Ihr Einzelcarport 3,75 m breit. Die Einfahrtsbreite beträgt 3,35 m. Ihr Doppelcarport CLASSIC mit Holzblende ist 5,48 m breit und bietet eine Einfahrtsbreite von 5,04 m. In der breiten Version ist Ihr Doppelcarport 6,00 m breit und bietet somit eine komfortable Einfahrtsbreite von 5,56 m. Die Einfahrtshöhe am Ende des Stellplatzes beträgt standardmäßig ca. 2,15 m. Die gewählten Maße beschreiben immer die Außenmaße inklusive Dachüberstand. Die Wahl der richtigen Breite hängt von individuellen Vorlieben und dem zur Verfügung stehenden Platz ab. Die Konstruktion Ihres Carports wird ab Werk auf das gewünschte Maß zugeschnitten. Sie haben selbst die Möglichkeit, nach Lieferung das Carport in Länge und oder Breite einzukürzen. Gern übernehmen wir diesen Service für Sie und passen dann auch die Pläne individuell für Sie an. Sprechen Sie uns hierzu gerne an.
Welche Tiefe soll ich wählen?
Carports mit Abstellraum bieten wir in drei Standardtiefen an. Der vordere Dachüberstand beträgt dabei stets 70 cm, der hintere abhängig von der Bedachung zwischen 10 und 16 cm. Bei einem 7 m tiefen Carport ist der Abstellraum 1,30 m tief und der Stellplatz 5,54 m tief. Bei einem 8 m tiefen Carport ist der Abstellraum 2,30 m tief und der Stellplatz 5,54 m tief. Bei einem 9 m tiefen Carport ist der Stellplatz 5,84 m tief und der Abstellraum 3,00 m tief. Die Breite des Abstellraums ergibt sich aus der Carportbreite. Für individuelle Tiefen und Maße kontaktieren Sie unsere Fachberater.
Welche Holzart soll ich für mein Carport wählen?
Sie erhalten unser Holzcarport CLASSIC in drei verschiedenen Holzarten:
Die günstigste Variante ist eine Ausführung in druckimprägnierter Kiefer (KDI). Ebenfalls möglich ist die Fertigung der Konstruktion aus naturbelassenem Lärchenholz. Wünschen Sie eine farbig behandelte Konstruktion, empfehlen wir farbbehandelte Fichte als Konstruktionsvollholz (KVH). Farbbehandelte Carports erhalten Sie entweder mit einer ersten Grundierung in weiß oder bereits mit einem zweiten Anstrich in weiß oder anthrazit. Mit einem Holzcarport entscheiden Sie sich für ein hochwertiges, lebendiges Naturprodukt. Die Konstruktion Ihres Carports besteht aus gehobeltem und an den Kanten gefastem Holz. Damit das Holz langfristig der Witterung im Außenbereich standhält, ist je nach Holzart ein Holzschutz erforderlich.

Carport CLASSIC aus druckimprägniertem Kiefernholz

Carport CLASSIC mit Grundkonstruktion in Lärche naturbelassen

Carport CLASSIC mit Grundkonstruktion in Fichte weiß (2. Anstrich), auch mit Grundierung in weiß oder Anstrich in anthrazit verfügbar
Was sind die Vorteile von druckimprägniertem Kiefernholz (KDI)?
Ein Carport aus KDI ist zunächst einmal sehr preiswert und bietet somit maximale Funktionalität zum kleinsten Preis. Druckimprägniertes Kiefernholz ist der
Klassiker unter den Hölzern im Außenbereich. Die Kesseldruckimprägnierung sorgt durch das Einbringen von Imprägniersalzen für einen langanhaltenden Schutz gegen Pilze, Bläue, Insektenbefall oder Moderfäule. Der grünliche Farbton bildet zudem einen Pigmentschutz vor Sonneneinstrahlung. Typisch für das Kiefernholz sind deutlich
sichtbare Äste und Jahresringe. Astlöcher, Risse, raue Stellen und Einkerbungen machen den Charakter des Holzes aus. Wie alle Hölzer, kann sich Kieferholz werfen und es kann Harz austreten. Gerade in den ersten Jahren kommt es bei druckimprägniertem Hölzern immer wieder zu natürlichen grünen Salzausblühungen.
Welche Eigenschaften haben Carports aus Lärchenholz?
Lärchenholz überzeugt durch seinen natürlichen Charakter. Es ist sehr fest und
dauerhaft. Durch seinen hohen Harzgehalt ist das Lärchenholz sehr resistent gegen
Witterungseinflüsse. Bei feuchtem Klima kann es auch bei Lärchenholz vor allem im
Splintbereich zu Schimmel, Bläuepilzbefall oder Stockflecken kommen. Um dies zu vermeiden sollte nach dem Aufbau ein Holzschutz auf unbehandelte Hölzer aufgetragen werden. Auf Möglichkeiten, das Holz bereits werksseitig zu schützen, sprechen Sie uns gerne an. Wie bei allen Weichhölzern besteht besonders bei
warmen Temperaturen die Möglichkeit, dass Harz austritt. Dies kann bei Lärche durch den sehr hohen Harzgehalt in erhöhtem Maße der Fall sein. Sollte einmal Harz auf Ihren PKW tropfen, lässt sich dieses einfach mit handelsüblichem Speiseöl entfernen. Durch Einwirkung von UV-Strahlung bekommt das Holz einen angenehmen silbergrauen Farbton. Wenn die Verfärbung verhindert werden soll, empfehlen
wir, dass Holz mit einem pigmentierten Öl zu behandeln. Trockenrisse, Krümmungen, Drehwuchs, Harzaustritte, etc. sind holztypische Merkmale, die auch bei Lärchenholz auftreten.
Welche Eigenschaften hat farbbehandeltes Fichtenholz KVH?
Eine Farbbehandlung erweitert die Möglichkeiten der individuellen Gestaltung.
Farblich behandelte Carports bieten wir Ihnen im Standard in Konstruktionsvollholz (KVH) an. Wünschen Sie eine besonders hohe Maßhaltigkeit und eine besonders geringe Neigung zu Rissbildung, dann kontaktieren Sie unsere Kundenberater für ein Angebot bezüglich eines exklusives Carports aus Fichte Brettschichtholz (BSH).
KVH ist ein technisch getrocknetes Vollholz mit einer im Vergleich zu frischen
Hölzern hohen Maßhaltigkeit und geringen Neigung zur Rissbildung. Technische Hölzer wie KVH erreichen deutlich verbesserte technische und statische Eigenschaften als unbehandelte Hölzer und punkten durch hohe Tragfähigkeit und Stabilität.
Bei der Verwendung von Fichtenholz im Außenbereich ist eine Holzschutzbehandlung notwendig. KVH erhalten Sie entweder mit einer Vorgrundierung in weiß oder bereits mit einem zweiten Voranstrich in anthrazit. Die Grundierung und der zweite Anstrich werden ab Werk aufgetragen. Weitere Farben oder zusätzliche Anstriche sind auf Anfrage möglich.
Je nach Farbton deckt der zweite Anstrich oft schon gut; durchscheinende Holzmaserungen und Äste gehören jedoch zum Naturbaustoff Holz. Auch bei farblich
behandelten Carports aus KVH gehören die oben beschrieben Holzmerkmale, wenn auch in verminderter Form, zum charakteristischen Erscheinungsbild des Werkstoffes. Mögliche transport- oder aufbaubedingte Verunreinigungen an dem werksseitig vorbehandelten Holz können bauseits durch Zwischenschliff und Endanstrich wieder ausgeglichen werden. Gerne beraten wir Sie bei der Auswahl der geeigneten Farben. Je nach Witterung sollte der Farbanstrich regelmäßig erneuert werden.
Wie ist das Gründach des Carports ausgestaltet?
Für die Dachbegrünung eines Carports wird zunächst eine wurzelfeste Folie, die das Carportdach schützt. Hier arbeiten wir mit extrem haltbarer, hochwertiger EPDM-Folie mit 20 Jahren Herstellergarantie. Darauf wird die Vegetationsschicht aufgebracht, die bei uns standardmäßig aus Blähton als Unterbau und einer Drainageschicht aus mineralisch-organischem Substrat sowie Dachstauden aus fünf verschiedenen gemischten Sedumarten besteht. Wichtig ist, dass der Dachablauf freigehalten wird, um dem Wasser das Abfließen zu ermöglichen. Aufgrund der Materialvielfalt, sowie der vielen Punkte, die es zu beachten gilt, empfiehlt es sich, die Begrünung des Carportdachs unseren professionellen Carport-Monteuren zu überlassen. Auf Wunsch realisieren wir gerne auch eine ganz individuelle Dachbegrünung für Sie: Sprechen Sie uns einfach darauf an.

Die Statik des Carports spielt bei der Dachbegrünung eine enorm wichtige Rolle. Im Vergleich zu anderen Bedachungen ist eine deutlich höhere Dachlast zu kalkulieren. Ein Carport mit Gründach muss nicht nur die Schneelast im Winter tragen, sondern zudem das Substrat der Vegetationsschicht sowie das Wasser, das im Erdreich gespeichert wird, aushalten. Die Konstruktion Ihres Carports wird von unseren Carport-Experten speziell auf diese Belastungen ausgelegt.
Wie ist die Duoprofil-Verkleidung für den Abstellraum ausgestaltet?
Die Wände des Abstellraums sind mit senkrecht verbautem Duoprofil verkleidet. Die Verkleidung wird jeweils passend zur Holzart und Farbe des Carports angeboten. Das Duoprofil ist 19 mm stark. Farbig behandelte Abstellräume bleiben im Innenbereich einmal weiß vorgrundiert. Alle Wandverkleidungen werden im Standard zwischen den Pfosten montiert. Kontaktieren Sie für Sonderwünsche gerne unsere Fachberater!

Duoprofil passend zur Holzart des Carports in kdi, Lärche oder KVH farbbehandelt
Wie ist der Abstellraum des Carports ausgestattet?
Die Abstellräume unserer Systemcarports CLASSIC sind im Standard mit einer nach außen zu öffnenden Tür mit einem Meter Breite mit einem dänischen Torverschluss ausgestattet. Die Rahmenhölzer der Tür bestehen aus lasiertem Fichtenholz. Zusätzliche Türen, Fenster und Lichtbänder für Ihr Carport planen gerne unsere Fachberatern mit Ihnen.
Sie möchten eine Tür mit einer Drückergarnitur und Schloss? Diese finden Sie hier.
Wodurch zeichnet sich die CLASSIC-Serie aus?
- Das Carport CLASSIC ist hochwertig und massiv gearbeitet. Das Maß aller tragenden Pfosten beträgt 12 x 12 cm.
- Das Carport CLASSIC wird mit modernen, hochwertigen Baustoffen ausgeführt.
- Das Carport CLASSIC wird regional gefertigt. In unserem Carportwerk in Schleswig-Holstein fertigen wir Ihr Carport nach der Bestellung auf Maß.
- Das Carport CLASSIC ist immer ein Komplettpaket! Sie erhalten Ihr Carport inklusive aller für den Aufbau benötigten Schrauben und Beschläge.
Welches Zubehör benötige ich für mein Carport?
Zur sicheren Verankerung im Boden empfehlen wir Fundamente mit H-Pfostenträgern in 121 mm.
Als Sichtschutz empfiehlt sich eine passende Seitenwandverkleidung oder eine Rückwandverkleidung. Einfach direkt mitbestellen!
Alle unsere Carports werden inklusive Entwässerungssystem geliefert. Unsere Gründächer enthalten einen PVC-Dachablauf. Zusätzlich können Sie bei uns direkt ein Fallrohr aus PVC oder Zink erwerben.
Bieten Sie auch eine professionelle Montage an?
Unser hauseigenes Team aus erfahrenen Zimmerleuten, Ingenieuren, Meistern, Tiefbauern und Tischlern übernimmt gerne nicht zur die Planungsleistung, sondern auch die Ausführung für Sie. Vom Fundament über die Montage des Carports, die Dacheindeckung, sowie zusätzliche Leistungen, wie unseren Bauantragsservice, stehen wir Ihnen zur Seite!
Auf welche Belastung sind die CLASSIC-Carports ausgelegt?
Alle unsere Carports sind in solider Bauweise gefertigt und nach einer Systemstatik auf die rauhe Witterung in unseren nördlichen Breiten ausgelegt. Die Carports sind mit einer Schneelast nach DIN EN 1991-1-3 (Schneelastzone 2) bemessen. Dazu gehört für die „norddeutsche Tiefebene“ die Berücksichtigung und der Nachweis für den 2,3 fachen Wert der charakteristischen Schneelast als außergewöhnlicher Lastfall (entspricht 156kg/m2). Die Windlastermittlung erfolgt nach DIN EN 1991-1-4:2010-12. Eine individuelle Objektstatik zur Aushändigung lassen wir auf Wunsch gern für Sie durch unser Partner-Statikbüro anfertigen.
Erhalte ich Bauzeichnungen für mein Carport?
Damit Sie den Aufbau Ihres Carports schnell und problemlos durchführen können, erhalten Sie von uns als Selbstaufbauer einen Pfostenplan, eine Materialliste und eine allgemeine bebilderte Aufbauanleitung. Die Errichtung eines Carports ist ein aufwändiges handwerkliches Projekt, dass nur sehr erfahrenen Heimwerkern zu empfehlen ist. Gerne bieten wir Ihnen unseren Rundum-Sorglos-Service inklusive professioneller Montage an!
Ich habe Sonderwünsche. Was nun?
Wir sind Ihr Experte für individuelle Carports auf Maß in Schleswig-Holstein und Hamburg! Sie wünschen sich einen Wandanschluss, ein Garagentor oder haben andere individuelle Wünsche für Ihr FREESE Holz-Carport? Wir beraten Sie gerne!
Besuchen Sie unsere Ausstellungen oder kontaktieren Sie unsere Berater telefonisch:
Carport-Ausstellung und Beratung Quickborn: Justus-von-Liebig-Ring 19, Quickborn, 04106-6414170
Carport-Ausstellung und Beratung Bordesholm: Kieler Straße 35, Bordesholm, 04322-69020